PROYECTOS
Nosotros
CONTACTO
Taller de Diseño
PROYECTOS
Nosotros
CONTACTO

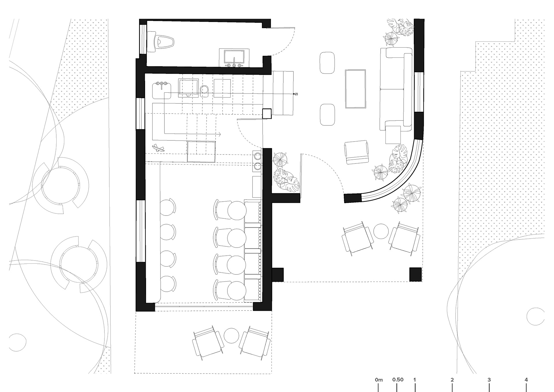
Fortuita Café

You may also like

Hemingway Bar
Marivy
Torre Tec Interiores
Casa de Arroz
Aria Showroom
Barrio W
Arte y Cultura TEC de Mty
Casa Xochiac
Rubato Hotel
Kali Coffee Vita
↑Volver al Principio
San Pedro Garza García | Nuevo León | México