PROYECTOS
Nosotros
CONTACTO
Taller de Diseño
PROYECTOS
Nosotros
CONTACTO

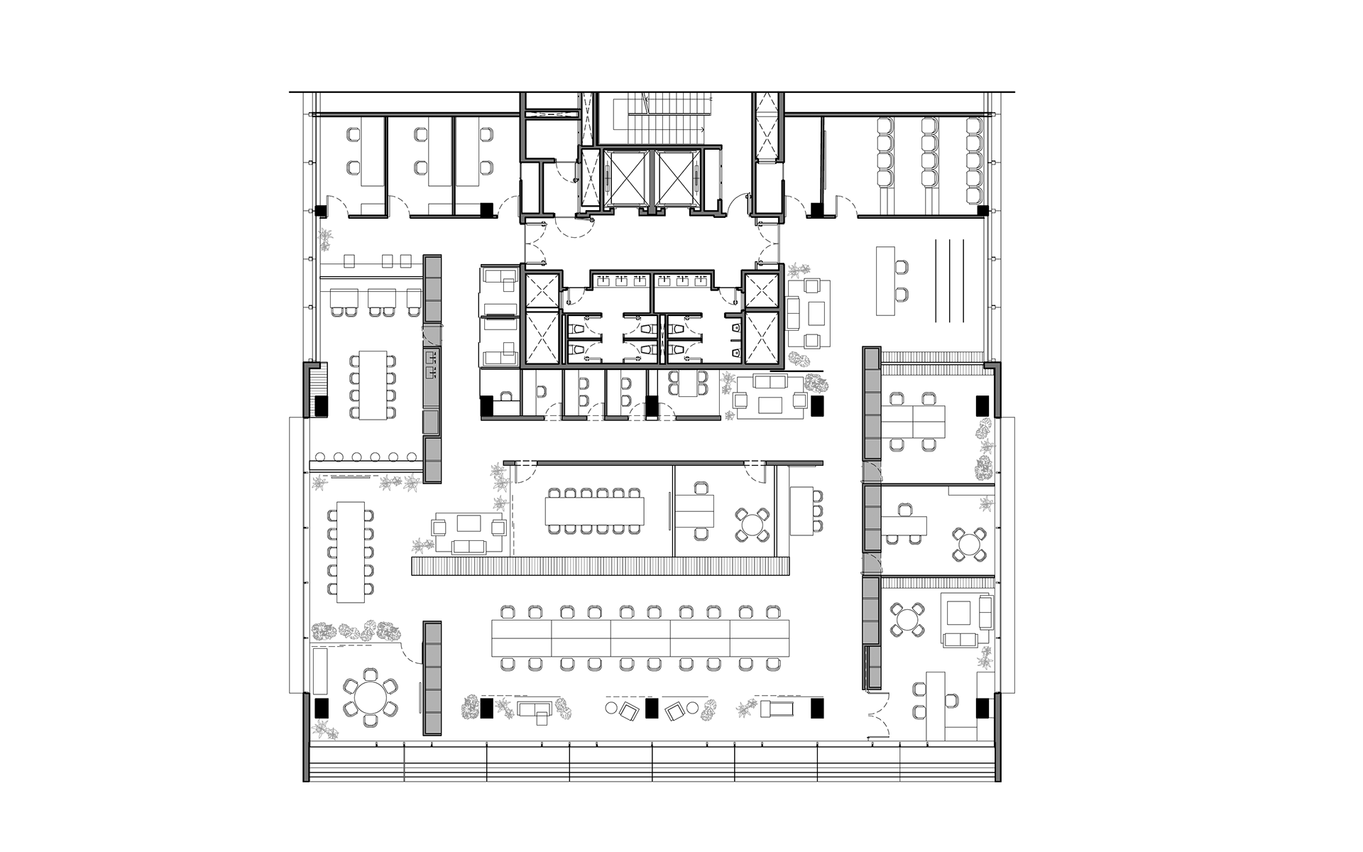
Oficinas Bambú

You may also like

Casa Teide
Epicland
Greenbite TEC de Mty
Plaza Barrio W
Casa de Arroz
Cafeliz
Pure Chic
Tipiah
Casa Xochiac
SUNA
↑Volver al Principio
San Pedro Garza García | Nuevo León | México